A unique property. Designed for living.
Located just minutes from Lake Memphrémagog, with access rights, and from Owl’s Head Mountain, the home enjoys a privileged setting, ideal for a couple or a family seeking nature and tranquility. It also stands out for its expansive garden and orchard, offering a lush and generous living environment.
Kitchen & Downstairs Living Area
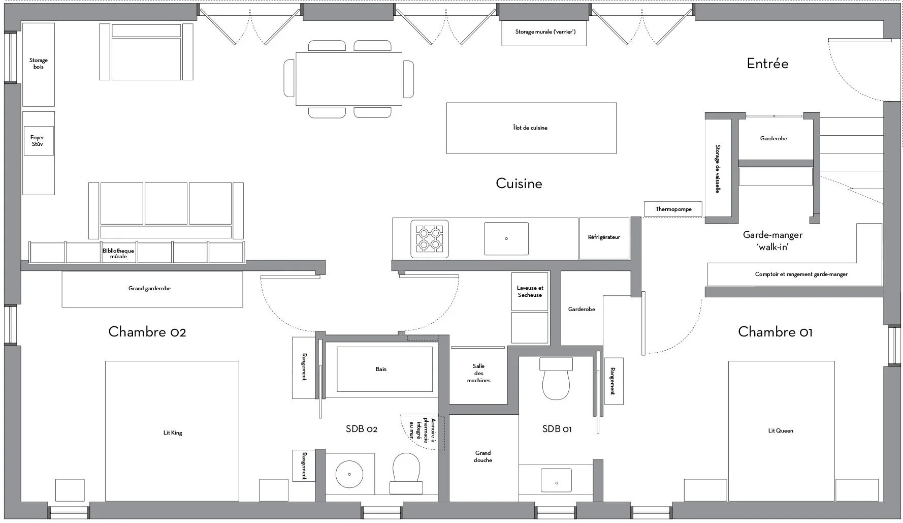
The home is grounded in a clear and functional layout. Its linear configuration structures the spaces with fluidity, naturally distinguishing the living areas from the more intimate quarters.
The simple, compact volume allows for abundant natural light through generous openings on the courtyard-facing façade, while also ensuring effective cross-ventilation. The rectangular geometry, combined with generous ceiling heights and integrated storage throughout, lends the home a sense of restrained elegance and enduring architectural coherence.
Kitchen & Dinnerware Display Cabinet
Glassware Display Cabinet
Walk-in Pantry
Built-in Solid Oak Bookcase Wall
Floor Plan - Ground Floor
Master Bedroom 1 - With Full Ensuite Bathroom
Master Ensuite Bathroom 1
Master Ensuite Bathroom 1
Master Bedroom 2 - With Full Ensuite Bathroom
Master Ensuite Bathroom 2
View From Entry
The owners designed this home as an adaptable residence, capable of evolving with changing needs.
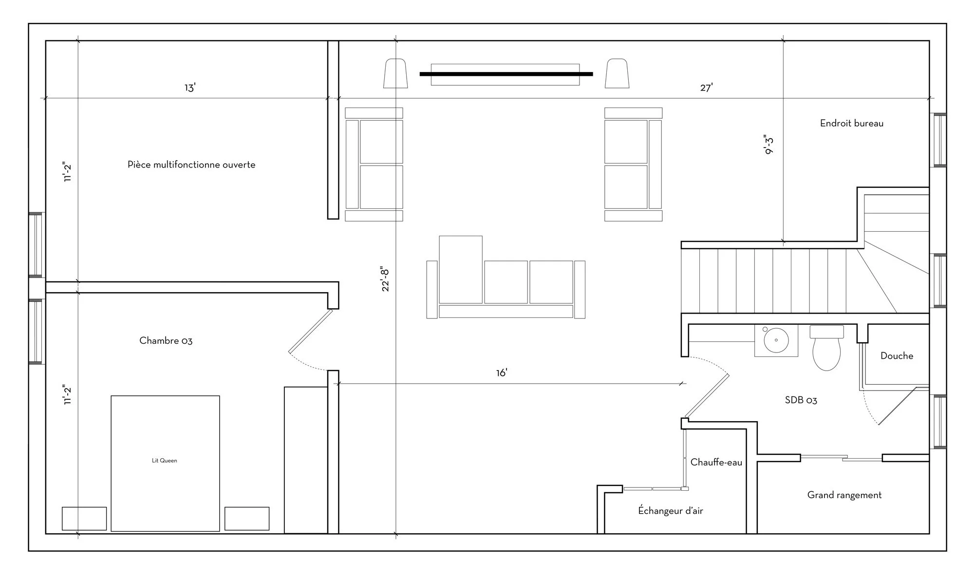
The upstairs loft space is currently used as a workspace, but can easily be adapted to different lifestyle scenarios, offering the flexibility to reconfigure the living spaces and, if required, to add an additional bedroom. With a third, full bathroom including a large linen closet for storage, the space is ready for your vision.
An accessory building, such as a studio, may also be installed on the property; an electrical extension already integrated into the exterior wall facilitates future development possibilities.
Second Floor Loft - Additional Bedroom & Entertainment Areas possible
Floor Plan - Second Floor (With provisions for additional bedroom, workspaces and entertainment lounge)
Full Bathroom 3
Full Bathroom 3, incl. Large Linen Closet