Une propriété unique

Située à quelques minutes du lac Memphrémagog, avec droit d’accès, et du mont Owl’s Head, la maison bénéficie d’un emplacement privilégié, idéal pour un couple ou une petite famille en quête de nature et de tranquillité. Elle se distingue également par son vaste jardin et son verger, offrant un cadre de vie généreux et verdoyant.

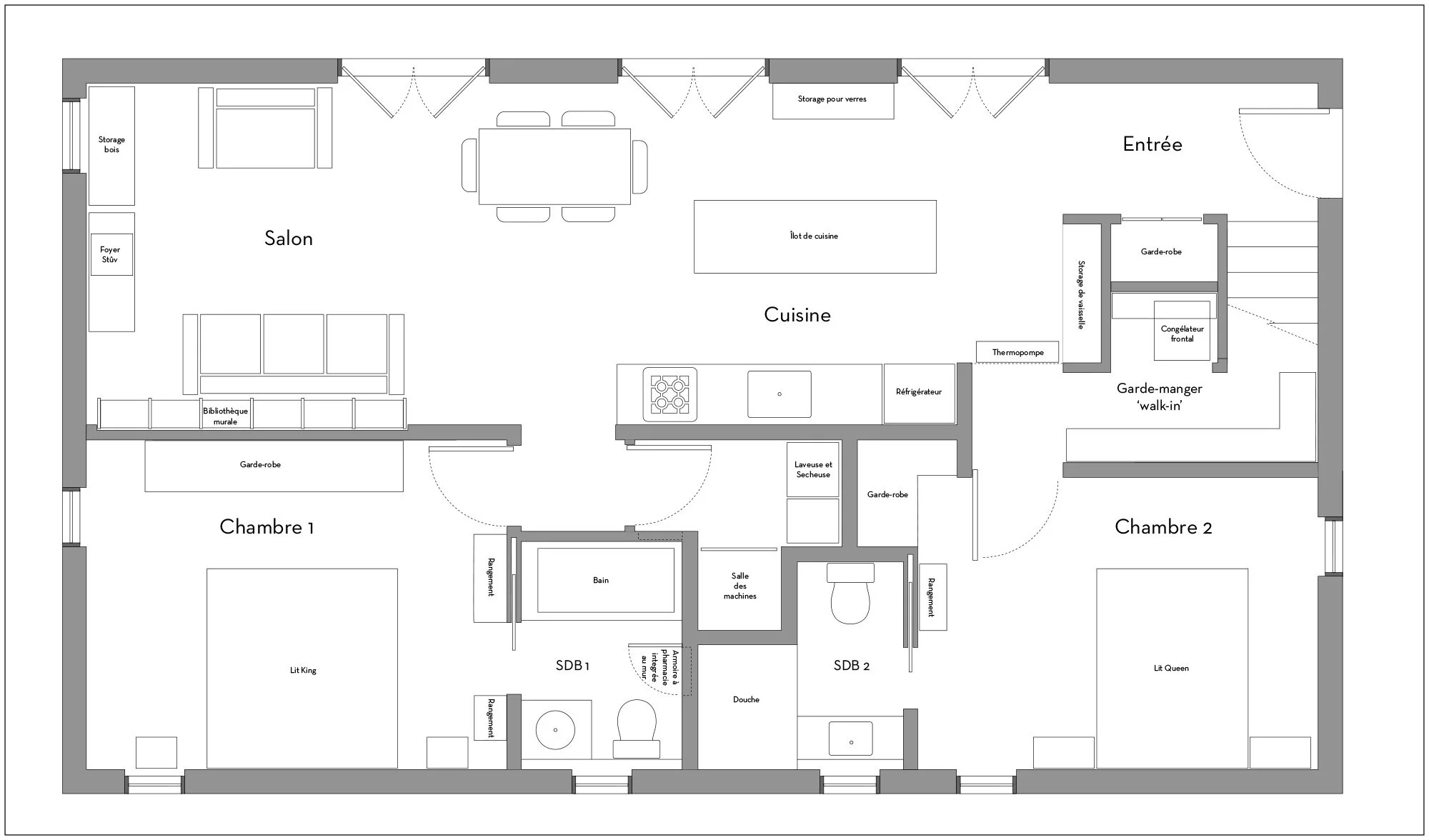
Cuisine et salon RDC

Conçue sur un plan rectangulaire, la maison s’appuie sur une organisation claire et fonctionnelle. Son tracé linéaire structure les espaces avec fluidité, distinguant naturellement les zones de vie des espaces plus intimes.

Le volume simple et compact favorise une abondante lumière naturelle grâce à de larges ouvertures en façade côté cour, assurant également une ventilation traversante efficace. La géométrie rectangulaire, combinée à une belle hauteur sous plafond et à l’intégration de nombreux rangements, confère à l’ensemble une sobriété maîtrisée et une cohérence architecturale durable.

Rangement pour verrerie
Vaisellier 'walk-in' avec congélateur frontal
Bibliothèque murale en chêne massif
Plan du rez-de-chausée
Chambre des maîtres 1 avec salle de bain
Chambre des maîtres 2 avec salle de bain 
Vue de l'entrée

Les occupants ont conçu cette maison comme une habitation pensée pour s’adapter aux changements de leurs besoins au fil du temps. Elle offre la possibilité de reconfigurer les espaces de vie et d’ajouter, au besoin, une chambre supplémentaire. Un bâtiment accessoire, tel qu’un studio, peut également être implanté à l’arrière du terrain ; la sortie électrique, déjà prévue dans le mur extérieur, en facilite l’aménagement futur.

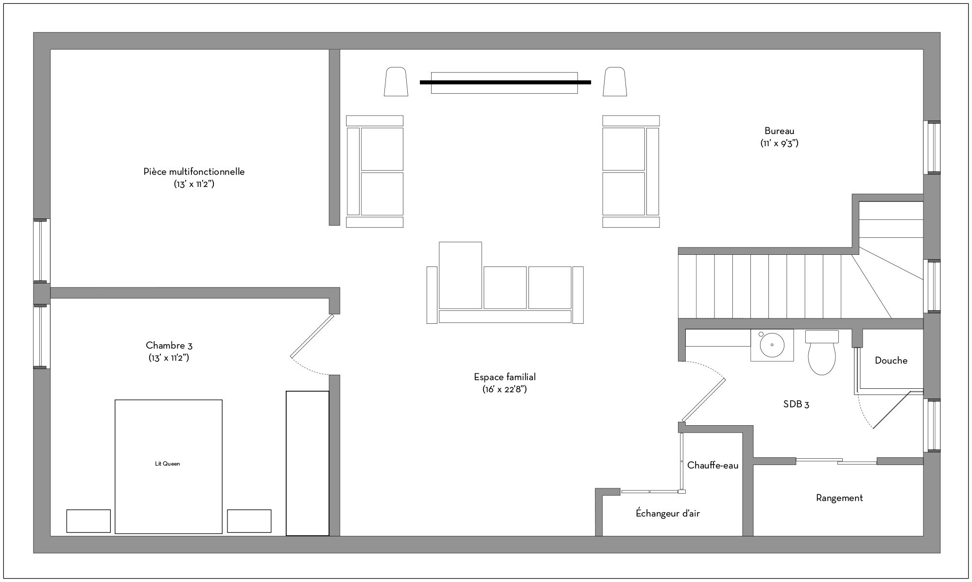
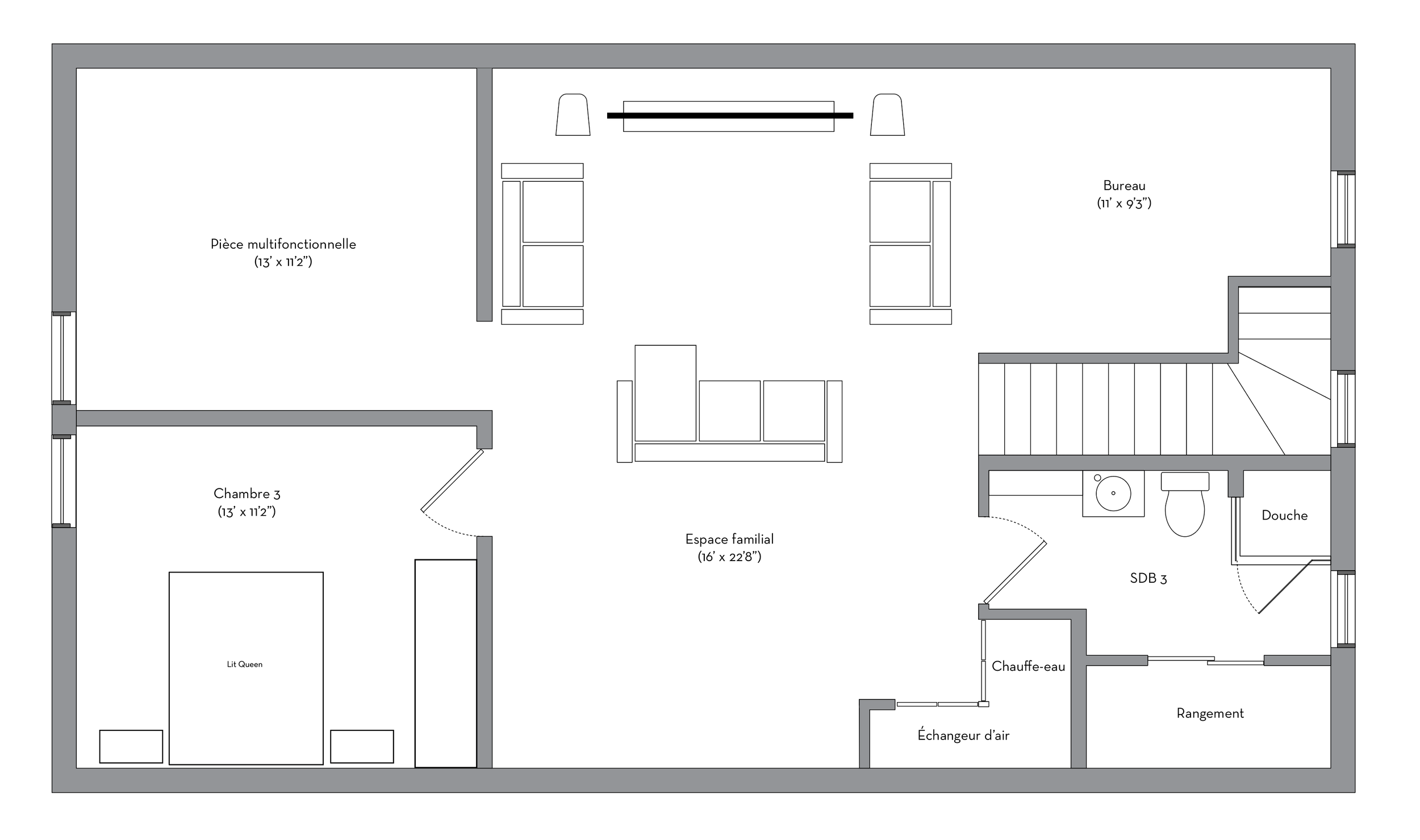
Espace loft au 2e étage
Proposition d'un plan d'aménagement au 2e étage, incluant une 3e chambre, des espaces de travail et un salon familial
Salle de bain 3
Next
Next

Le Lieu